Skip to main content
Price $315,000.00
Beds 3
Baths 2
1/2 Baths 0
Square Feet 1602
Year Built 2025

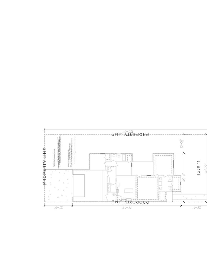
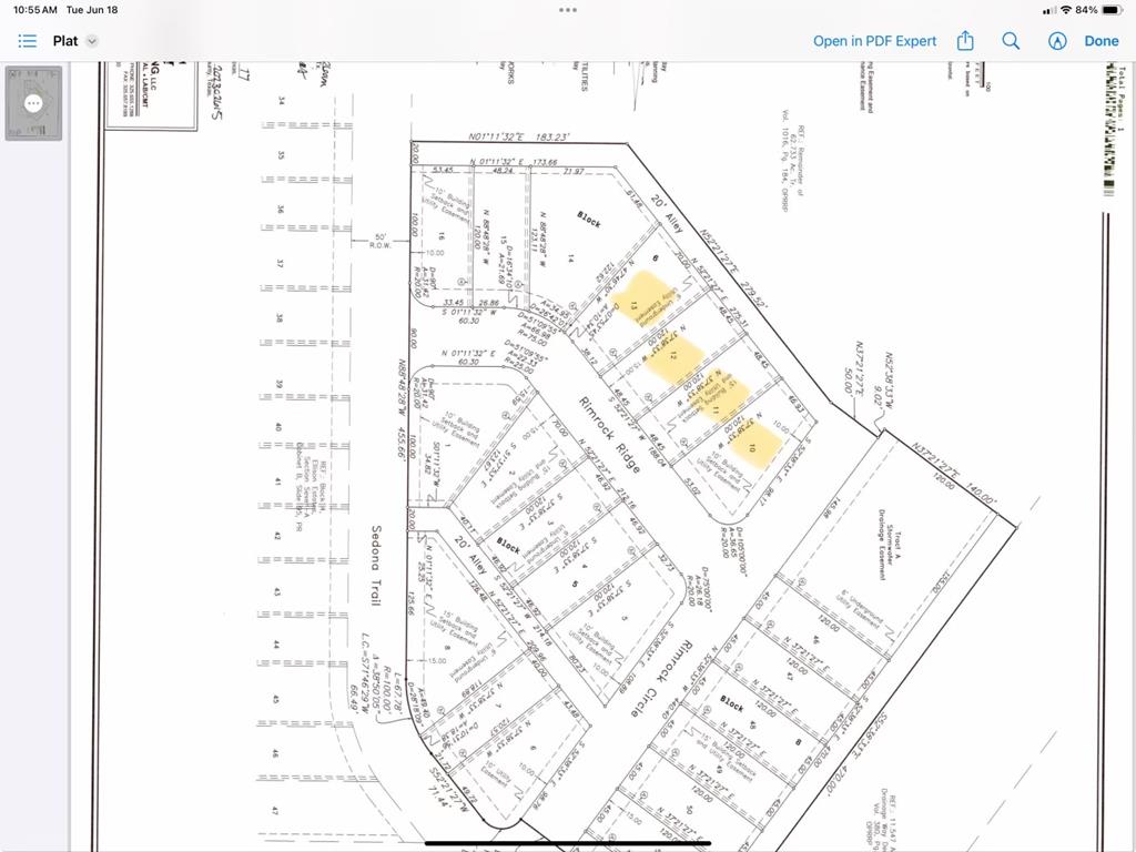
4305 Rimrock Ridge
San Angelo, TX 76904
United States

PRICE

$
315,000
.00
Lot Size
55x120

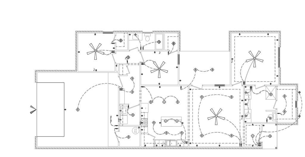
Welcome to your dream home in the coveted Southland neighborhood, expertly built by McCrory Custom Construction, with more coverage being offered than what is custom for builders; a 1-3-10 warranty vs. a 1-2-10 warranty! This stunning patio home features an open concept floor plan, split bedroom layout, & key features like a 2-car garage, foam insulation, & stainless steel kitchen appliances, including a refrigerator. The home boasts luxury vinyl plank flooring and granite countertops throughout. Outside, enjoy a manicured lawn with a sprinkler system, landscaping with a flower bed and tree, and a paved alleyway. The privacy fencing with cedar pickets, galvanized posts, and one gate ensures security. There is also a covered patio out back to enjoy the summer sun or cool fall breeze. Designed for comfort, style, and convenience, with manageable yards, this home is perfect for high-quality living. For a full walk through video please search the address on Youtube!

Last Modified
Bedrooms
3
Listing Status
K
List Date
Jan 01, 2025
Subdivision
Ellison Estates
Master Bedroom Dimensions
14x15
Bedroom 2 Dimensions
11x11
Bedroom 3 Dimensions
10x11
Dining Room Dimensions
9x8
Full Bath
2
Half Bath
0
Year Built
2025
Square Feet
1602
Elementary School
Bonham
Middle School
Lee
High School
Central High School
Lot Description
04,09,13
Virtual Tour
Real Estate Agent

Halle McCrory