Skip to main content
Price $255,000.00
Beds 4
Baths 2
1/2 Baths 0
Square Feet 1777
Year Built 1962

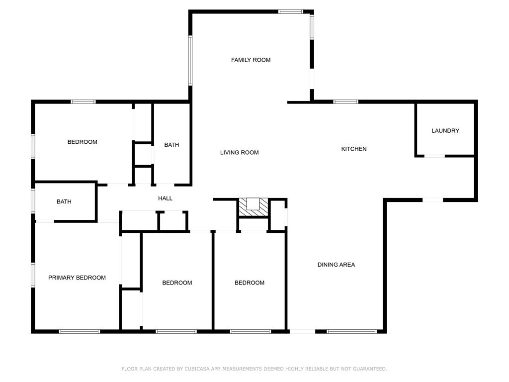
3313 SAC Ave
San Angelo, TX 76904
United States

PRICE

$
255,000
.00
Lot Size
0.187

Nestled in the coveted College Hills neighborhood of San Angelo, this charming home offers the perfect blend of character & modern upgrades. Ideally located near Angelo State Univ, restaurants, & shopping, convenience is at your doorstep. The home boasts a unique feature: vintage doors from the Roosevelt Hotel circa 1920s, adding a touch of rare history. Inside, you'll find an open-concept living & kitchen area, with luxury vinyl and Saltillo-inspired tile flooring. The updated kitchen shines with granite countertops, newer cabinets, & stylish hardware, while the wood-burning fireplace creates a cozy ambiance in the living space. Both bathrooms have been updated, complementing the modern feel of the home. Step outside to a spacious backyard, perfect for outdoor gatherings. Additional highlights include updated windows, 1-car carport, & a 2-story storage building with a loft and covered patio. This home is a rare gem blending charm with modern amenities. Schedule your showing today!

Last Modified
Bedrooms
4
Listing Status
K
List Date
Jan 01, 2025
Subdivision
College Hills
Acres
0.19 acres
Master Bedroom Dimensions
15x11
Bedroom 2 Dimensions
13x10
Bedroom 3 Dimensions
13x10
Bedroom 4 Dimensions
13x10
Dining Room Dimensions
16x13
Utility Dimensions
8x7
Full Bath
2
Half Bath
0
Year Built
1962
Square Feet
1777
Elementary School
Bowie Elementary
Middle School
Glenn
High School
Central High School
Lot Description
Fence-Privacy
Virtual Tour
Real Estate Agent

Halle McCrory/ Alexis Alcocer